2332 Pleasure House Road Unit#A

Virginia Beach, Virginia 23455 (MLS #10499902)
Bedrooms
4
Square Ft.
2,151
Garages
2
$684,000
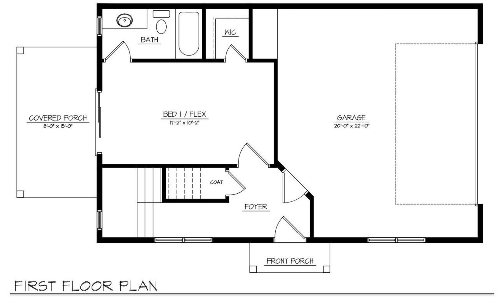
Design & Build by Beach Building Group! Bay Villas consists of four 2-unit condos (8 units to be built) Beautiful 3-story condo with 2 car garage & 2 covered porches. BR 4 or flex room on 1st floor with full bath. BR 2, primary suite & laundry on 3rd floor.Read MoreRead Less
Features
Bedrooms
4
Full Bathrooms
4
Square Ft.
2,151
Garages
2
Floors
2
Mortgage Calculator
Monthly Payment
$0
Perfect home finder

'VIP' Listing Search

Whenever a listing hits the market that matches your criteria you will be immediately notified.

Join The List
Layne Donovan
Associate Broker | Distinctive Homes Specialist
Layne Donovan profile image
Please Select Date
Please Select Type

Similar Listings

View More Listings